39
$550,000 Sale
Listed 3 hours ago
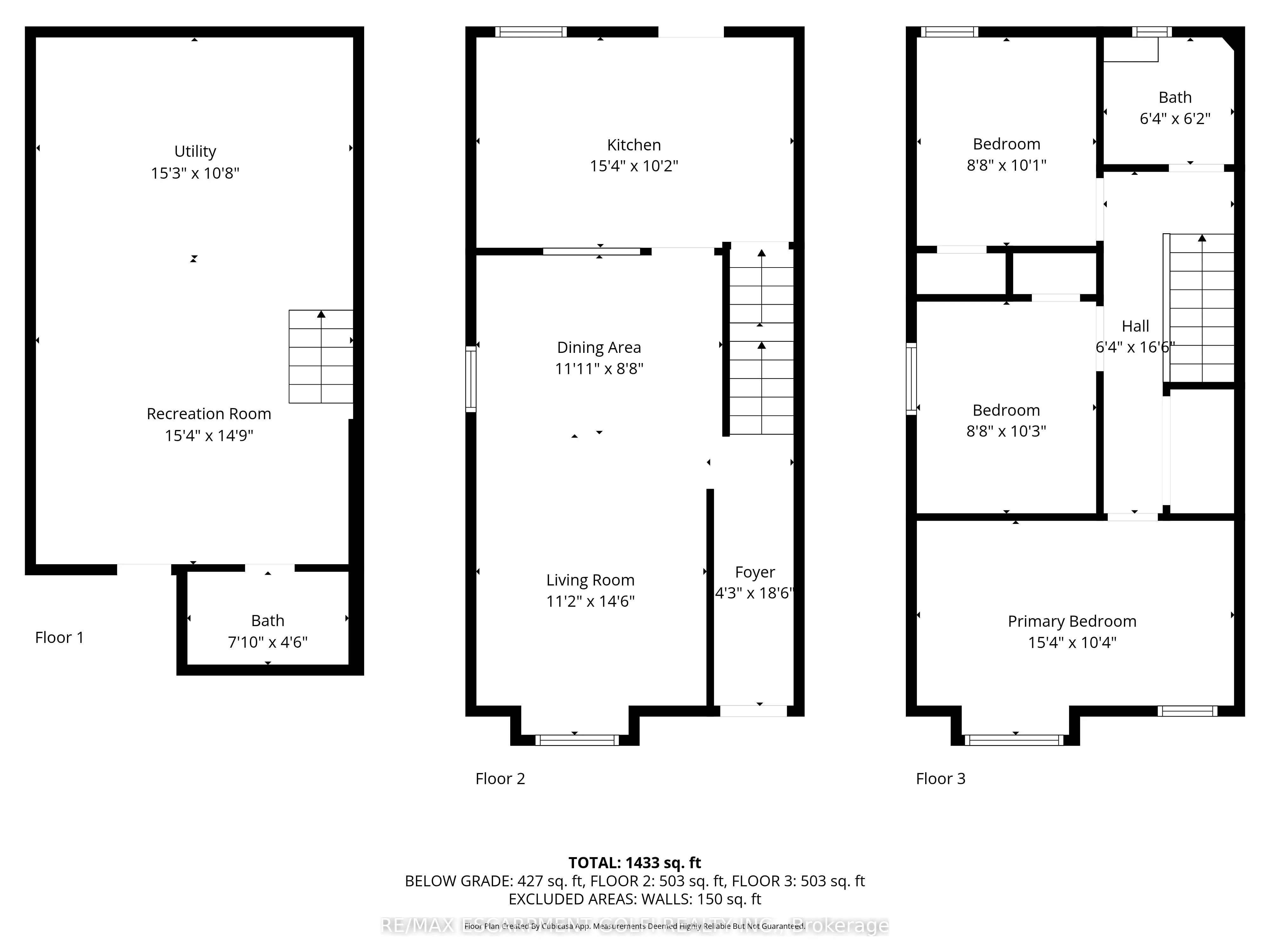
97 FRANCIS Street
· 3
· 2
· 0
· 1100-1500
Listing History
Buy/Sell/Terminated/Expired listing history for 97 FRANCIS Street
Key Facts
Key facts for 97 FRANCIS Street
Property Type
House, 2-Storey
Parking
None 0 garage, 3 parking
MLS #
X12472443
Size
1100-1500 sqft
Basement
Full,Finished
Listed on
2025-10-20
Lot size
25 x 100.0
Tax
$2,949.34 /yr
Days on Market
1
Approximate Age
100+
Maintenance Fee
-
Description
Charming, updated all-brick century home in prime Central Hamilton neighbourhood. Spacious, turn-key 3 bed, 2 bath home ready to move in! Bright & inviting main level features high ceilings, large windows that fill the space with natural light & open concept layout. Main floor offers living room, di...ning area & updated kitchen w/ walk-out to backyard. Upstairs, you'll find a sun-filled primary bedroom, two additional generous bedrooms & 4pc bath. Easy-to-care-for laminate & tile flooring throughout both levels. Finished basement extends living space includes rec room, 3pc bath, laundry & ample storage. Private fully fenced serene backyard complete w/ large covered deck & shed. Laneway access provides additional parking & potential for a future garden suite. Situated on a good-sized lot w/ driveway for up to 3 cars. Located in family-friendly neighbourhood close to all amenities including shopping, schools, General Hospital, downtown core, West Harbour GO Station, Pier 4 Park & Marina.
Similar Properties (No results)
Courtesy of: RE/MAX ESCARPMENT GOLFI REALTY INC.